Esentepe Mahallesi 302 ada 1 ve 6 parsel numaralı taşınmazlarda NiP ve UiP değişikliğine yapılan itiraz sonucu düzenlenen imar planlarının askı ilani 12 Şubat 2026, 08:00
TUNCELİ BELEDİYESİ
İLAN
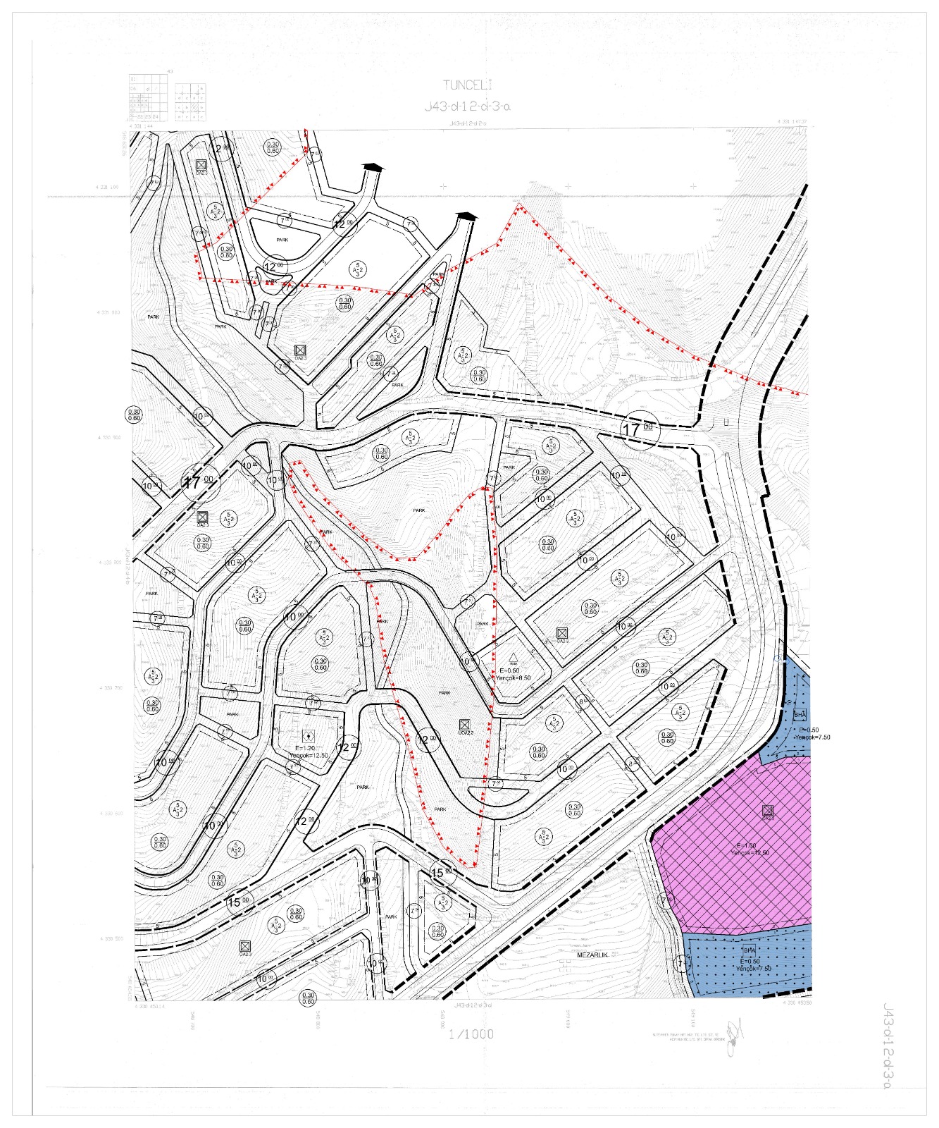
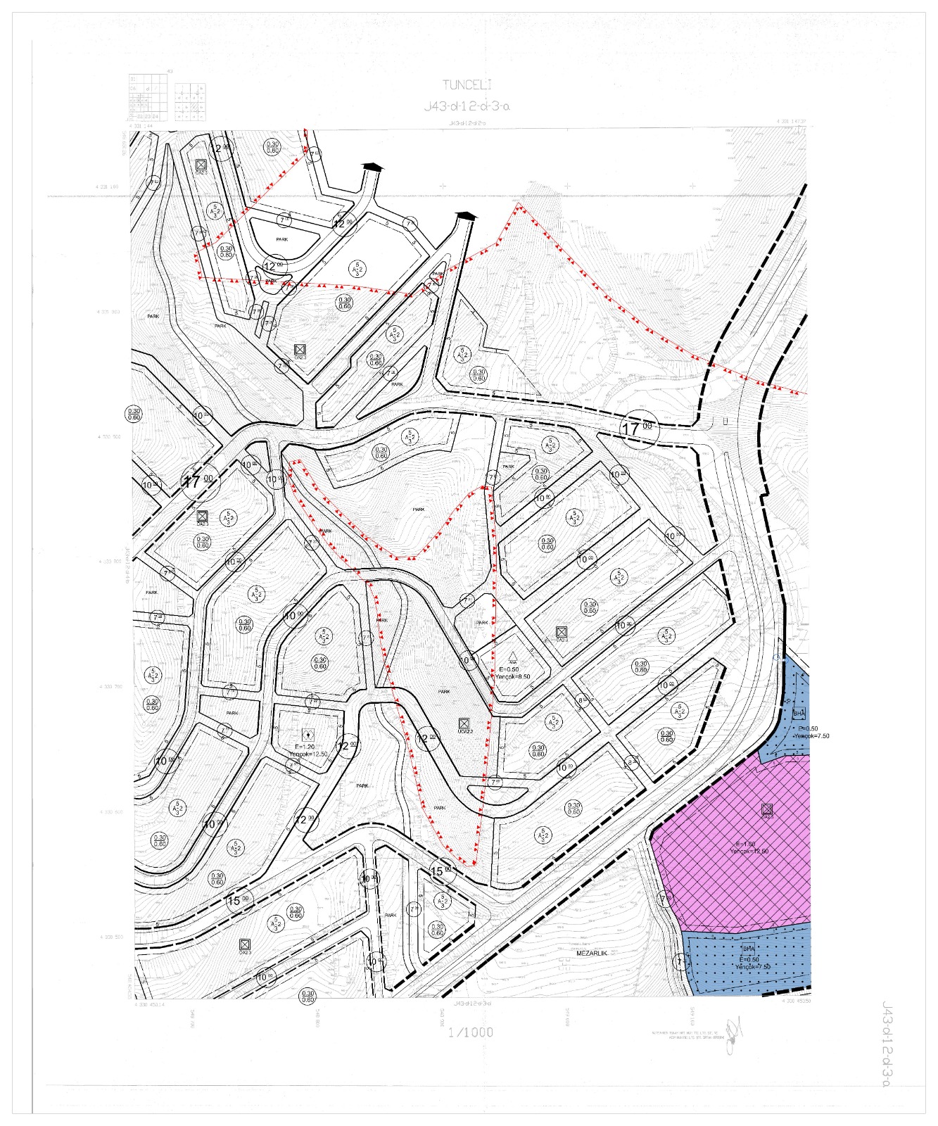
Tunceli Belediye Meclisinin 06.08.2025 tarih ve 2025/78 sayılı kararı ile onaylanarak, 21.08.2025-22.09.2025 tarihleri arasında 1 (bir) ay süre ile askıya çıkarılmıştır. Askı süresi içerisinde söz konusu plana yapılan itirazlar neticesinde, itirazlar Tunceli Belediye Meclisinin 28.01.2026 tarih ve 2026/9 sayılı kararı ile görüşülerek karara bağlanmış ve Belediye Meclisince kabul edilen kısımlara yönelik yapılan düzenlemeye göre plan değiştirilmiştir.
Yapılan değişiklikler neticesinde yeniden düzenlenen İlimiz Merkez İlçe, Esentepe Mahallesi 302 ada 1 ve 6 parsel numaralı taşınmazı kapsayan Konut Dışı Kentsel Çalışma Alanı, Kamu Hizmet Alanı ve Belediye Hizmet Alanı amaçlı 1/5000 ölçekli Nazım İmar Planı ile İmalathane Alanı ile Resmi Kurum Alanı ve Belediye Hizmet Alanı amaçlı 1/1000 Ölçekli Uygulama İmar Planı;
3194 Sayılı İmar Kanunu’nun 8/b maddesi ve Mekânsal Planlar Yapım Yönetmeliğinin 33/6. maddesi gereğince, 1 (bir) ay askıda kalmak suretiyle 24.02.2026 tarih Salı günü saat 08:00’da başlamak üzere, Tunceli Belediyesi Hizmet Binası girişindeki ilan panosunda askıya çıkartılmış olup, eş zamanlı olarak Belediyemizin resmi internet sayfasında (www.tunceli.bel.tr) ve ilgili mahalle muhtarlıklarında ilan edilmiştir. Askıdaki imar planlarına itirazın olması durumunda 24.03.2026 tarih Salı günü saat 17:00’a kadar Tunceli Belediyesi İmar ve Şehircilik Müdürlüğüne yazılı müracaatta bulunmanız gerektiği ilgililere ilan olunur.
İş bu ilan tutanağı tarafımızdan tanzim edilerek imza altına alınmıştır. 24.02.2026
|
Duygu TAŞ SEZGİN Yüksek Şehir Plancısı |
|
Melih Melik KARA İmar ve Şehircilik Müdür V. |
DIĞER DUYURULAR
-
Reklam, İlan ve Tanıtım Faaliyetlerine İlişkin Yönetmelik Hakkında Duyuru
17 Nisan 2026, 10:46 -
Çevrenin Korunması ve Temizliği ile İlgili Emir ve Yasaklar Yönetmeliği Hakkında Duyuru
17 Nisan 2026, 10:45 -
Yaz-Kış Bahçesi Uygulamalarına İlişkin Yönetmelik Hakkında Duyuru
17 Nisan 2026, 10:43 -
Kent Estetik Kurulu Çalışma Usul ve Esasları Yönetmeliği Hakkında Duyuru
17 Nisan 2026, 10:40 -
İlimiz, Merkez İlçe Moğultay (Alpdoğan) Mahallesi ve Atatürk Mahallesinin muhtelif bölgelerinde plan değişikliği
17 Nisan 2026, 08:00 -
İlimiz Merkez İlçesi, Atatürk Mahallesi sınırlar dahilinde bulunan 1739 ada 6 parsel numaralı taşınmazda NİP ve UİP Plan Değişikliği
03 Nisan 2026, 08:00 -
Cumhuriyet Mahallesi sınırları dahilinde bulunan 3 ada 160 no.lu parselde plan değişikliği
24 Mart 2026, 08:00 -
Aktuluk Mahallesi (Yol Altı) NİP ve UİP İmar Planına Yapılan İtirazlar Sonucu Düzenlenen Alanlara İlişkin İlan
24 Mart 2026, 08:00 -
Cumhuriyet mahallesinde 02.07.2025 tarih ve 85 sayılı encümen kararı ile askıya çıkarılan 3194 sayılı imar kanununun 18. Madde uygulaması
02 Temmuz 2025, 14:17 -
İlimiz Merkez İlçesi, Cumhuriyet Mahallesi ile hastane kavşağı bağlantısını sağlayan imar yolunun güzergâhının düzenlenmesine ilişkin NİP ve UİP Plan Değişikliği
13 Mart 2026, 08:00






